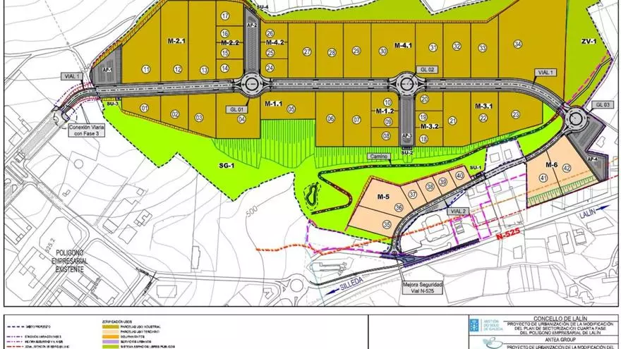
La cuarta fase de Lalín 2000 se estructura en 34 parcelas industriales y 8 de uso terciario
Su superficie oscila entre los 1.130 y los 56.690 metros cuadrados | El proyecto contempla más de 36.000 metros de zonas verdes y 29.300 con destino a viales | El parque ganará cerca de 1.500 plazas de aparcamiento

Infografía del proyecto elaborado por la administración autonómica.

La Xunta acaba de licitar las obras de la cuarta fase del polígono Lalín 2000 por un importe que 11,2 millones de euros. Con un plazo de ejecución de los trabajos estimado en 18 meses la urbanización de los terrenos debería estar concluida para finales de 2027, con lo que el asentamiento de las primeras empresas no llegaría hasta el año siguiente.
El proyecto técnico elaborado por Xestur establece que el ámbito total de actuación en esta cuarta base abarca 313.499 metros cuadrados, de los que algo más de 140.000 corresponden al suelo edificable. En esta zona se distribuirán 34 parcelas industriales y otras ocho de uso terciario. Es decir, en las más de una treintena de espacios podrán levantar sus instalaciones las empresas interesadas en iniciar o ampliar su actividad en Lalín 2000, mientras que las ocho restantes se reservan a usos actividades de servicios y comerciales en lugar de producción o manufactura. Con el diseño autorizado, tras un largo tiempo de espera por las autorizaciones sectoriales, el tamaño de las parcelas podrá oscilar entre los 1.131 y los 56.690 metros cuadrados.
Al margen del espacio destinado a superficie edificable una parte importante de los terrenos en su momento expropiados por la administración autonómica se destina a aparcamientos y viales o zonas verdes. Así, está previsto que la construcción de la red vial de comunicación por el parque empresarial precise algo más de 29.300 metros cuadrados, al margen de otros 13.000 metros para estacionamientos. En este sentido el proyecto modificó el planteamiento inicial para ganar plazas, quedando fijadas un total de 1.427, de las que 780 irán en dominio público. Entre zonas verdes, aparcamiento y red vial se consume el 38 por ciento de todo el ámbito de esta ampliación. La Ley do Solo de Galicia fija como mínimo una plaza de aparcamiento por cada 100 m2 edificables, de las que al menos la cuarta parte deben ser de dominio público. Así, con 1423 plazas, quedaban 356 en dominio público, que se elevaron a 780 con la modificación del plan de sectorización, repartidas entre áreas de estacionamiento y el viario. En las parcela de uso lucrativo quedan 625 y 72 en la destinada a equipamiento. El proyecto, además, concreta en casi 36.200 los metros cuadrados de superficie que se habilitarán como espacios verdes. Otros 64.442 metros corresponden a sistemas generales y 2.756 a equipamientos.
Por otro lado, en lo que respecta al desglose del presupuesto de ejecución material [en este caso se excluye algo más de 1 millón de gastos generales; casi 569.000 euros de beneficio industrial y los 2,3 millones a los que asciende el IVA] los movimientos de tierras y demoliciones absorben la parte más representativa. Para estos trabajos se estiman necesarios cerca de 3,3 millones de euros, mientras que para firmes y pavimentos son 1,8 millones. El impacto económico de la red de abastecimiento de agua y sistemas contraincendios asciende a 504.000 euros, además de otros 523.000 para la red de saneamiento de aguas residuales. El coste aproximado de sistema de alumbrado público supera ligeramente los 285.000 euros, de los que 130.000 se ciñen a las luminarias. Para las redes de telecomunicaciones y de alta y baja tensión se estiman 93.183 y algo más de un millón de euros, respectivamente, y 184.000 para las canalizaciones de gas. Señalizaciones, ajardinamiento y mobiliario urbano representan 294.000 euros, con 47.300 para actuaciones de integración ambiental. Entre otras cuantías relevantes cabe citar los 164.000 euros de la gestión de residuos.
Camino de Santiago
En el proyecto se tiene en cuenta que por el polígono discurre el trazado del Camiño de Inverno. La ruta jacobea toma su entrada por el acceso principal al parque, por la N-525, y discurre casi paralelo a las naves construidas en la primera fase.
Ensanche del vial de acceso existente desde la N-525
El acceso desde la carretera N-525 se rediseña para eliminar incorporaciones directas, garantizando la seguridad y fluidez del tráfico. Y se amplía el carril de deceleración existente. Esta actuación contempla el ensanche de este vial de entrada, paralelo a la vía estatal, con el que se busca rebajar la peligrosidad y la brusca deceleración de los vehículos que entran en el complejo empresarial por la vía anexa al hotel Torre do Deza. Para establecer la ordenación del tráfico el proyecto técnico contempló una serie de mediciones de aforos en distintos puntos del polígono. En este caso la Intensidad Media Diaria (IMD) más relevante se registra en la recta de la N-525 en la zona de Bergazos, justo antes de la entrada al parque empresarial, con 10.386 vehículos diarios. En la rotonda de la salida del complejo que enlaza con la entrad a la autopista AP-53 se promedian 8.377 vehículos diarios y menos de 1.500 en las glorietas anteriores emplazadas dentro del parque. El tráfico por el vial que discurre paralelo a la carretera nacional, en el que se construyeron las primeras naves industriales, rebasa los 1.800 desplazamientos al día, intensidad de circulación semejante a la contabilizada en la medición realizada en un vial de la primera ampliación del polígono. Además, fue incorporado un estudio de accidentes en el tramo entre los puntos kilométricos 293+503 y 293+836 de la carretera nacional N-525 en el periodo 2018-2023. El saldo, fue de tres heridos leves tras nueve incidentes, tres provocados por animales sueltos.
- Davila 12/12/2025
- Revés para un desarrollo urbanístico clave en Vigo, al exigir la Xunta un examen ambiental más riguroso
- El BNG urge la compra de Povisa: «Cuando la sanidad se convierte en un negocio, las empresas ven clientes, no pacientes»
- Gadis abrirá un supermercado de casi 2.000 m2 en Policarpo Sanz
- El hombre que intentó quemar viva a su expareja en Vigo: «Fóiseme a olla, prendinlle lume á miña exmoza»
- La Firma Salvia: el innovador método patentado por el Cunqueiro para detectar el deterioro cognitivo años antes que los síntomas
- Davila 13/12/2025
- Salvador Beloso rescata la historia del tranvía de Vigo: «Nos lo arrebataron de manera injusta»